Yadgar Towers
Structure/
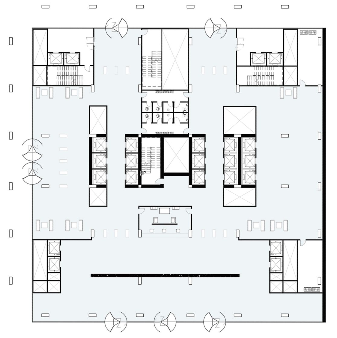
The Yadgar Towers draws its strength, both visual and physical, from its structural form, the bundled tube. Plan of the buildings consists of 4 squares, each 25m in block A and 20m in block B across, placed in a two-by-two grid arrangement. Each square has 3 columns per side spaced 6.5m on centers, with adjacent squares sharing columns. As the columns rise up the building, each square in the plan forms a tube, which can be seen on the exterior of the building. These tubes are independently strong but are further strengthened by the interactions between each other through truss connections.
While the tubes connect at each floor level with beams and floors trusses, several large trussed levels act as the main horizontal connectors in the buildings. These trussed levels, which also contain the refuge floor level for the building, appear as X-shaped truss belts on the façade. While the double skin facade covering the trussed levels mask the structural details, the purpose of these levels remains abundantly clear visually.






