Tehran Tourism Center
Brief
In recent years, tourism tendency in Iran has increased relative to economic level. One of the tourist destinations is the capital. As a metropolis, the image of Tehran as a metropolis is not very attractive for travelers, but in the heart of this mess and air pollution in the city of Tehran there is a considerable part of our country’s cultural heritage.
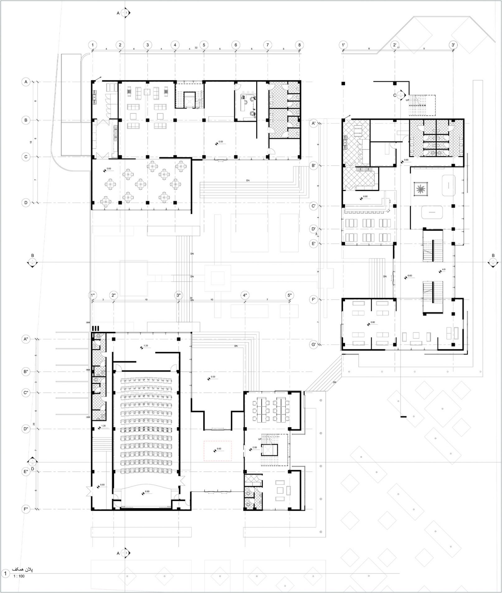
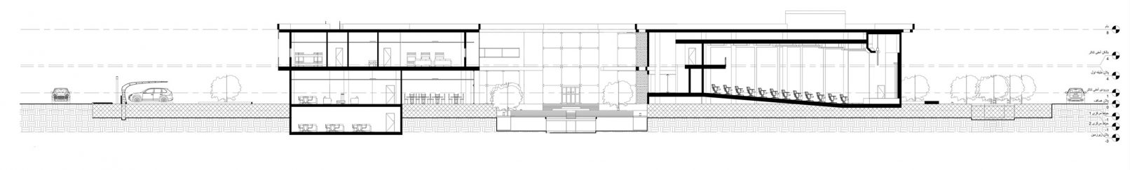
Creating a tourist neighborhood that also represents Tehran people’s behavior and life as well as a treasure of cultural values needs to establish a center for tourism and cultural services in the heart of the district.
- The goals of its establishment are briefly mentioned:
Providing the need for temporary sheltering and feeding passengers is a desirable quality. to create a direct acquaintance with the culture of Tehran and the fields of tourism through the autonomous handicrafts, holding exhibitions and training classes, holding Tehran round, specialized seminars and so on and in order to organize all the above activities and also the future development program need a administrative and administrative center.
- The goals of its establishment are briefly mentioned:
Providing the need for temporary sheltering and feeding passengers is a desirable quality. to create a direct acquaintance with the culture of Tehran and the fields of tourism through the autonomous handicrafts, holding exhibitions and training classes, holding Tehran round, specialized seminars and so on and in order to organize all the above activities and also the future development program need a administrative and administrative center.







